免費申請戶型規劃
提交您的信息專業家裝顧問1對1服務免費電話申請: 13159804569
一旦聊起裝修,不管你面對的是室內設計師,家具店里的服務員,還是身邊的親朋好友,總會被問起:你家是什么風格?你喜歡什么風格的裝修?
到底有沒有人了解什么是真正的北歐風呢?跑到赫爾辛基、哥本哈根、斯德哥爾摩,在大街上抓住一個當地人問問,也許只能得到一個模糊的概念。更別說生活在國內的你我,就算是設計師,恐怕也給不出什么標準答案。
裝修房子,該不該討論風格?
大部分人裝修之前都會在網上大量瀏覽照片,尋找裝修風格的靈感。事實上,這會牽扯到另外一個問題,你對你的家,有什么樣的想象?
圍繞這個話題,家裝網云空間裝飾也列出幾點裝修準則,分享給大家。
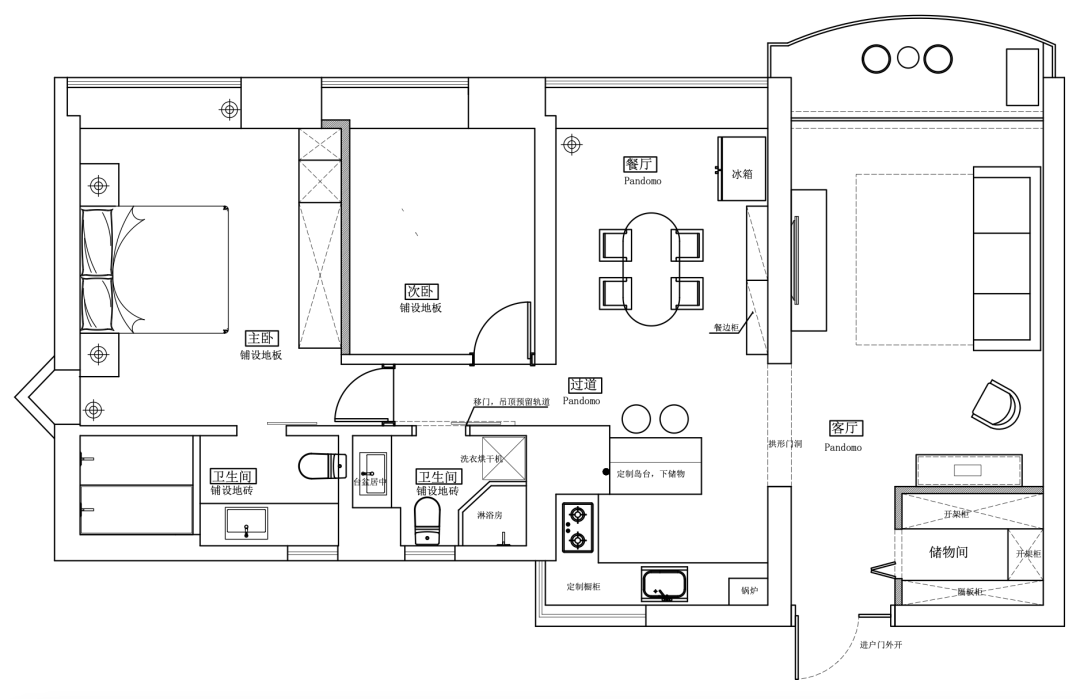
01.盡可能打開空間
此案例原本是三室兩廳,但客餐廳被安排在同一個空間,進門一眼就看到餐廳,沒有過多的私密感。于是設計師舍棄了最靠近客廳的一間房改造為餐廳,將公共區域擴大。

第一間房被改為了餐廳,第二間房把墻移動,將主臥的空間擴大
基本大家裝修前期都會做預算,但剛開始采買建材時就會發現預算遠超自己計劃。別人的裝修案例看多了,總有很多東西讓你心動,什么都想做,錢不夠用。這時候的核心原則是,一旦你猶豫了,那就不要做!只要不涉及硬裝,千萬別擔心日后會后悔,后期大多也可以補上。

03.老房改造,優先把錢放在基礎工程
這里的基礎工程,特指三大塊:水電、供冷供暖系統、門窗,換句話說,把錢花在這些看不到但又非常重要,壞起來要人命的地方。
最近很多地方都迎來寒潮,試想一下,如果你家水管爆裂,停電停水,你家裝修得再美,能住嗎?所以對于水電的預埋、管道的材料,包括整個排水系統的安排,都需要花點心思。
門窗!可能很多人不太重視,但想想看,你的供冷系統和供暖系統做得再好,如果門窗不夠保溫,那不就全白費了?更何況我們需要面對的還有風雨天,如果窗戶密封性不好,還可能造成漏水。有些對外界噪音比較敏感的朋友,也值得在門窗上多花點錢。
全屋定制有它的好處,柜子一做,收納儲物就有地方了。但壞處也非常明顯,空間被固定死了,以后若想改變,會非常困難。所以我個人只建議在廚房、衣帽間等絕不會改變功能的區域做定制柜,其余可以購買更為靈活的成品柜來代替。如果日后不喜歡了,想改變風格或者改變空間布局時隨時可以換掉。
把交給全屋定制的錢,拿去買點好家具,你絕對不會后悔。眾所皆知,好看的家多半是靠好看的家具撐起來的,而重點是全屋定制的柜子做得再美,搬家時也沒辦法帶走,所以柜子實用就好,不如把錢花在好看好用的家具上,這些都是你要每天相處的產品,更值得你去投資。